Thứ Hai, 19 tháng 5, 2014

Xây 60m2 nhà phố nổi trội ở Bắc Ninh -tu van kien truc| Tu van

Kính gửi chuyên mục Nhà đẹp!

Tôi có mảnh đất rộng 4,5m, dài 13,5m hướng Tây, xung quanh đều giáp nhà hàng xóm. Tôi dự định làm nhà tầng 1 có phòng khách, phòng bếp ăn và 1 wc chung. Tầng 2 có 2 phòng ngủ và 1 wc chung. Tầng 3 có phòng thờ, phòng tắm rộng hiện đại có bồn sục xông hơi, phòng giặt, sân phơi. Nhà hướng Tây nhưng tuổi tôi hợp bàn thờ quay hướng Nam, bếp quay hướng Nam.

Mong các KTS dựng mặt bằng và mặt tiền phù hợp. Xin cảm ơn! 

(Huy Hoàng – TP. Bắc Ninh)

Trả lời: 

Chào anh Hoàng!

Dựa vào các thông tin anh cung cấp, kiến trúc sư lên phương án mặt bằng các tầng và phối cảnh mặt tiền như sau:

* Về kiến trúc không gian các tầng:

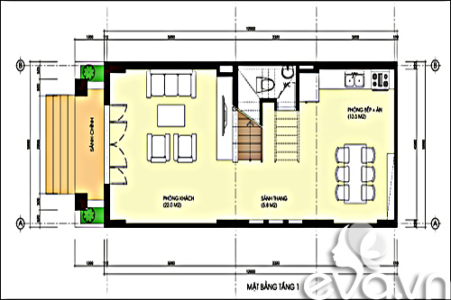
- Mặt bằng tầng 1:

Tầng 1 được bố trí gồm: 1 phòng khách, 1 phòng bếp ăn và 1 vệ sinh chung.

Xây 60m2 nhà phố nổi trội ở Bắc Ninh - 1

Toàn bộ không gian tầng 1 với lối kiến trúc mở giúp không gian thoáng, mang đến cảm giác rộng rãi hơn. Nhà ống ngoài việc nghiên cứu 1 mặt tiền bắt mắt, ấn tượng, tránh nhàm chán còn được đầu tư rất nhiều vào nội thất. Không gian nhỏ hẹp, đồ nội thất phải bố trí, lựa chọn sao cho phù hợp, diện tường trang trí màu sáng kết hợp với đèn chiếu sáng giúp không gian đón khách thêm gợi mở, đẹp mắt và thu hút hơn.

Phòng bếp ăn được nghiên cứu hướng bếp nấu vừa tuân thủ phong thủy, vừa thuận tiện cho người làm bếp. Vệ sinh chung đặt dưới gầm cầu thang, đây là giải pháp tối ưu tiết kiệm diện tích sử dụng.

- Mặt bằng tầng 2:

Mặt bằng tầng 2 thiết kế 2 phòng ngủ, 1 vệ sinh chung.

Xây 60m2 nhà phố nổi trội ở Bắc Ninh - 2

Sảnh thang khá rộng rãi là trung tâm giao nối các không gian tầng 2, diện tường thiết kế các vách âm kết hợp ánh sáng giúp các bức tranh treo thêm nổi bật. Sảnh thang rộng cũng là giải pháp giúp cho phòng ngủ phía trong thoáng hơn, không bị bí bách, thêm khoảng thông tầng gần cầu thang vừa giúp mang ánh sáng thêm cho phòng ngủ phía trong, vừa là không gian mở trang trí tiểu cảnh, không gian thêm phần sinh động, tự nhiên.

Phòng ngủ phía ngoài hưởng trọn ánh sáng và gió từ thiên nhiên nhờ cửa đi rộng mở ra ban công phía trước. Một vệ sinh chung đặt gần cầu thang, đây là vị trí thuận tiện cho các phòng cùng sử dụng chung.

- Mặt bằng tầng 3: 

Mặt bằng tầng 3 được bố trí gồm 1 phòng thờ, 1 phòng tắm Vip, phòng giặt và sân phơi.

Xây 60m2 nhà phố nổi trội ở Bắc Ninh - 3

Phòng thờ được bố trí tầng trên cùng, ở 1 vị trí thuận và đẹp tại tầng 3, không gian này khá quan trọng và tôn nghiêm nên được nghiên cứu kỹ theo phong thủy, thiết kế rộng rãi, cửa mở ra-vào giúp không khí lưu thông tốt. Một phòng tắm Vip được trang bị các thiết bị nội thất cao cấp như bồn sục, xông hơi, giúp gia chủ có được những giây phút thư giãn thoải mái, tiện nghi nhất.

*Về phối cảnh mặt tiền ngôi nhà

Những ngôi nhà lô phố thường hạn chế bởi mặt tiền hẹp, 3 mặt sát vách hàng xóm nên chỉ có 1 mặt tiền trang trí. Để ngôi nhà trở nên ấn tượng, nổi bật, các kiến trúc sư Beta Việt đã nghiên cứu và thiết kế mẫu nhà theo phong cách bán biệt thự.

Xây 60m2 nhà phố nổi trội ở Bắc Ninh - 4

Với ưu thế tạo ấn tượng về mặt hình khối và chi tiết kiến trúc của phong cách kiến trúc Pháp đã nâng tầm giá trị của ngôi nhà ống tưởng như hạn chế lại trở nên nổi bật. Trong ánh vàng của nắng, sắc sơn tường kết hợp đá ốp vân thạch chắc chắn biến ngôi nhà thành “điểm nhấn” tiêu biểu trong không gian cảnh quan đô thị.

Xây 60m2 nhà phố nổi trội ở Bắc Ninh - 5

Không giống như những kiểu nhà ống đơn sơ và chông chênh, vẻ đẹp của những ngôi nhà biệt thự phố này mang đến cái nhìn khá mới mẻ, tinh tế, kiến trúc cầu kỳ và mang hơi hướng phong cách Pháp giúp công trình hoàn chỉnh hơn, đẹp  mắt hơn.

Một số gợi ý về cách bài trí các phòng

Xây 60m2 nhà phố nổi trội ở Bắc Ninh - 6Phòng khách đơn giản nhưng sang trọngXây 60m2 nhà phố nổi trội ở Bắc Ninh - 7Phòng ăn nhỏ xinh, ấm cúngXây 60m2 nhà phố nổi trội ở Bắc Ninh - 8Phòng ngủ cho bố mẹ lãng mạn, ấm ápXây 60m2 nhà phố nổi trội ở Bắc Ninh - 9Phòng ngủ cho con xinh xắn, dễ thương

Trên đây là phương án thiết kế tối ưu KTS đưa ra dựa trên những thông tin của anh cung cấp. Chúc gia đình anh có được ngôi nhà như ý.

Xem thêm tư vấn xây nhà đẹp:

Xây 60m2 nhà phố nổi trội ở Bắc Ninh - 10

"Giải buồn" cho chàng trót mua đất méo

Xây 60m2 nhà phố nổi trội ở Bắc Ninh - 11

Hà Nội: Xây 80m2 nhà nở hậu "mỹ miều"

Xây 60m2 nhà phố nổi trội ở Bắc Ninh - 12

Tư vấn xây nhà phố 2 tầng đẹp, rẻ

0 nhận xét:

Đăng nhận xét

Tin xem Nhiều